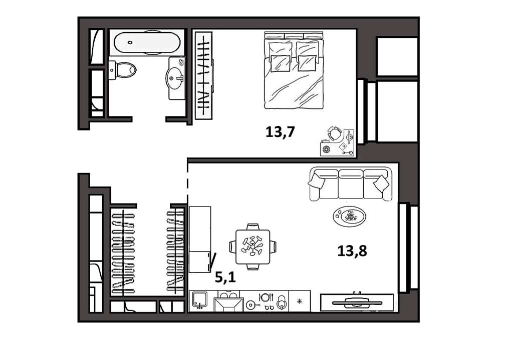
В жилом комплексе «Родина Парк» предлагается двухкомнатная квартира без отделки. Планировка: кухня-гостиная-столовая, спальня, ванная комната, гардеробная. Из окон квартиры открывается вид в сторону центра и на заказник «Долина реки Сетунь». Есть возможность объединения с соседней квартирой.










Родина Парк: экосистема для семьи, где растут и дети, и ваши возможности. Премиальный семейный кластер на западе Москвы, с трех сторон окруженный крупнейшим в столице природным заказником - «Долина реки Сетунь», вблизи Кутузовского проспекта.
«Родина Парк» - это единственный в столице жилой квартал с собственной экосистемой для развития, здоровья и творчества, где всё подчинено главной цели: дать человеку условия для развития - физически, профессионально, творчески и ментально.
На территории 3,5 га распложены:
Три формата жизни на одной территории: таунхаусы, клубные дома и видовые башни. Уникальное для Москвы соседство приватных таунхаусов с террасами, камерных клубных домов на первой линии заповедника и высотных жилых корпусов с панорамными видами на парк, позволяющее каждой семье выбрать свой идеальный дом в жилом кластере.
Все для системной заботы о здоровья и долголетии - приватный фитнес-центр, биохакинг-центр с чек-апами, лабораторией сна и здоровым питанием, центром инновационной косметологии.
Инфраструктура для детей позволяет почувствовать себя родителями, которые всё успевают и при этом дают своим детям самое лучшее и безопасное. Детский плейхаб "Тукуланы" для разных возрастов, многоуровневое детское пространство "Светлогорье" в одном из корпусов, творческие студии для занятия музыкой, танцами на территории медиакластера.
Спортивная и игровая инфраструктура на территории приватного двора-парка - воркаут, площадки для йоги и игровых видов спорта.
Помимо этого для жителей доступны инфраструктура и сервисы, которые берегут ваше время: консьерж-сервис, коворкинги и переговорные, подземный паркинг с кладовыми, местами для хранения велосипедов, электрозарядками. На первых этажах - кафе и рестораны, аптека, салон красоты, премиальный супермаркет и бытовые сервисы.
Рядом с проектом сосредоточена насыщенная образовательная инфраструктура — 6 школ из списка лучших частных образовательных учреждений Москвы и области по версии Forbes, филиалы МГИМО, МГУ, МГТУ, МФЮА, а также Инновационный центр Сколково.